產品分類
products
聯系我們 / contact us
地址:上海市金山區楓涇鎮環東一路
郵編:201507
網址:www.yhldshop.com
銷售部
手機:15068285565
電話:021-5648 0189
傳真:021-5186 1633
商務QQ:3038069780
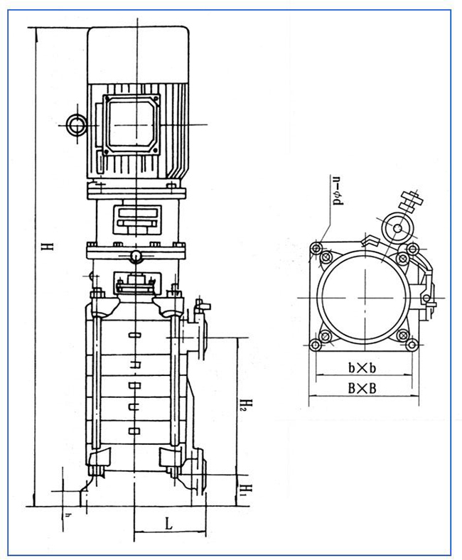
DLR型立式多級離心泵
當前位置:首頁 > DLR型立式多級離心泵DLR型立式多級離心泵
以下為系列產品選型范圍,具體型號參考性能參數表
口徑范圍 : φ40-φ250
流量范圍 : 4.2-504(m3/h)
揚程范圍 : 24-240(m)
優勢:
品牌知名度高、質量可靠、終身維護
常規產品現貨供應
訂做產品交貨及時
DL立式多級離心泵是采用國家推薦使用的高效節能產品IS型泵的水力模型,為立式多級多節段式結構。螺桿把進水段、中段、出水段夾緊聯成一體。水泵每一級裝一個葉輪、一個導水葉。軸向力采用水力平衡法解決,殘余軸向力由球軸軸承承受,用油脂潤滑。軸封采用軟填料或機械密封。產品執行JB/T2727-93《立式多級離心泵型式與基本參數》標準,主要供吸送稀釋的、清潔的、不腐蝕的、不爆炸的清水及物理化學性質類似水的不含固體顆粒或纖維的液體。
本司多級泵全部采用計算機設計和優化處理,公司擁有雄厚的技術力量、豐富的生產經驗和完善的檢測手段,從而保證產品質量的穩定可靠。
產品特點:
1、水力模型先進:效率高,性能范圍廣。
2、結構新穎,運行可靠:取消了平衡鼓,其軸向力采用水力平衡,徹底解決了平衡鼓易銹蝕、易咬死、易磨損的問題,保證了運行更加可靠。
3、更少的運行、維修費用:采用優質機械密封,耐磨損、無泄漏、使用壽命長,故障率低,具有更少的運行維修費用。
4、運行平穩,噪音低:采用低轉速電機,使泵運行平穩,噪音更低。
5、立式結構,占地面積小。
多級泵技術參數:
流量:4.2-504m3/h;
揚程:24-240m;
功率:1.5-450kw;
轉速:1480r/min;
口徑:φ40-φ250;
溫度范圍:0-+90℃;
工作壓力:≤2.4Mpa。










