產品分類
products
聯系我們 / contact us
地址:上海市金山區楓涇鎮環東一路
郵編:201507
網址:www.yhldshop.com
銷售部
手機:15068285565
電話:021-5648 0189
傳真:021-5186 1633
商務QQ:3038069780
QJ型深井潛水電泵
當前位置:首頁 > QJ型深井潛水電泵QJ型深井潛水電泵
以下為系列產品選型范圍,具體型號參考性能參數表
口徑范圍 : 40-120mm
流量范圍 : 5-200m3/h
揚程范圍 : 15-380m
優勢:
品牌知名度高、質量可靠、終身維護
常規產品現貨供應
訂做產品交貨及時
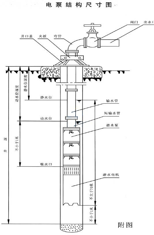
QJ型井用潛水電泵是電機與水泵直聯一體潛入水中工作的提水機具,它適用于從深井提取地下水、也可用于河流、水庫、水渠等提水工程:主要用于農田灌溉及高原山區的人畜用水,亦可供城市、工廠、鐵路、礦山、工地供排水使用。
產品特點
1、電機、水泵一體,潛入水中運行,安全可靠。
2、對井管、揚水管無特殊要求(即:鋼管井、灰管井、土井等均可使用;在壓力許可下、鋼管、膠管、塑料管等均可作揚水管使用)。
3、安裝、使用、維護方便簡單,占地面積小、不需建造泵房。
4、結構簡單、節省原材料。
潛水電泵使用的條件是否合適,管理得當與使用壽命有直接的關系。




